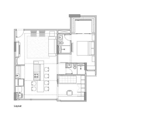
Từ nội thất phòng khách đến nhà bếp và phòng tắm đều được lựa chọn và sắp xếp một cách hoàn hảo.
|
|
|
Những bức tranh đầy màu sắc treo trên tường tạo nét duyên dáng và sống động cho không gian phòng. Những tủ, kệ có thiết kế đơn giản đáp ứng nhu cầu sử dụng khác nhau của chủ nhân căn hộ.
Một không gian văn phòng nằm sau bức tường trượt bằng gỗ cũng là một tính năng đáng ngạc nhiên của nội thất trong căn hộ. Không gian làm việc sạch sẽ, thoải mái để làm việc cũng như thư giãn.
Đồ nội thất chủ yếu bằng gỗ phù hợp với các màu sắc tươi sáng của tường, ghế, gối tựa, tranh treo tường, đèn…
Bạn sẽ cảm nhận đây là một không gian thanh lịch và hấp dẫn, vô cùng thích hợp để bạn cùng gia đình sinh sống.












Clip đang được xem nhiều nhất: Sau thông báo ly hôn chồng doanh nhân, Vũ Thu Phương hiện ra sao?
Giỏ Trái Cây 20/11 – Món Quà Tri Ân Sang Trọng, Ý Nghĩa Dành Tặng Thầy Cô
9 biểu hiện tưởng EQ cao nhưng lại tố cáo bạn là người cố tỏ ra thông minh, khôn vặt
-
5 khoản đầu tư đáng giá nhất trong đời, đến cả 'vua chứng khoán' Warren Buffett cũng áp dụng để tiền đẻ ra tiền
-
5 năm nghỉ hưu tôi nhận ra: Trong nhà nếu có 4 thứ này, thế hệ sau có tương lai rộng mở
-
10 dấu hiệu cho thấy bát hương có lộc, nhà bạn có không?
-
4 dấu hiệu của người 'phông bạt, giả giàu': Tưởng được ngưỡng mộ, thực chất lộ ngay EQ thấp
Đột nhập nhà dân lấy trộm gần 1 tỷ đồng
Xesaigon.vn cập nhật bảng giá thuê xe du lịch TPHCM minh bạch trong từng khoản phí
Hà Nội chi hơn 574 tỷ đồng tặng quà người có công dịp Tết Nguyên đán Bính Ngọ
Ông Johnathan Hạnh Nguyễn được đề nghị tặng danh hiệu Anh hùng Lao động
-
Hà Nội: Người bị thu hồi đất được ưu tiên mua nhà ở xã hội không cần bốc thăm
-
Cảnh sát giao thông mở cao điểm, kiểm tra nồng độ cồn dịp Tết Nguyên đán Bính Ngọ
-
Chậm cấp bằng, Đại học Kinh tế Quốc dân phải bồi thường cho cựu sinh viên 87 triệu đồng
-
Khởi tố đối tượng lái ô tô tông chết người ở Tây Ninh
-
Xe kinh doanh vận tải không bắt buộc phải lắp ghế an toàn cho trẻ em
-
Bắt “tổng tài” chỉ đạo đánh nhân viên quán cà phê vì bị nhắc cấm hút thuốc
-
Chỉ đạo mới của TP.HCM sau vụ cháy 4 người tử vong
-
Bộ Y tế khuyến cáo phòng, chống ảnh hưởng của ô nhiễm không khí tới sức khỏe